Property Details

1222 8 Avenue SE
Calgary (A2253441)

$3,250,000
4
5
3,706 ft²
Loading Listing...

Loan Term
Interest Rate
Loan Amount
Annual Tax
Ann. Insurance

* Amounts are estimates only. Final payment amounts may vary.

Description

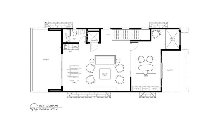
Discover this ultra-luxury 3-story detached home in historic Inglewood, where timeless elegance meets modern design. Built by Levant Homes in collaboration with Aly Velji Designs, this 4,998 sq. ft. masterpiece features an elevator, full smart home automation, and backs directly onto the Bow River—just minutes from Inglewood’s vibrant shops, cafés, and pathways. Sitting on a 33-ft south-facing lot, the home exudes curb appeal with full-height Lux windows, brick exterior, cedar soffits, and an aged concrete patio with built-in planter. Inside, 10-ft ceilings and an open-concept layout create a bright, elegant flow. The main level includes a formal dining room, custom wet bar, mudroom, and a warm living area centered by an Urbana fireplace with a white oak media wall. The chef’s kitchen impresses with marble counters, custom cabinetry, walk-in pantry, and Wolf/Sub-Zero appliances including a 48” gas range and built-in steam oven. Upstairs, the primary suite offers a double-sided fireplace, walk-in closets, and a spa-inspired ensuite with steam shower, soaker tub, and heated floors. Two additional bedrooms each feature private ensuites and walk-ins. The loft level boasts downtown views, a rec room, bar, office, and rear patio overlooking the river. The fully finished basement adds a gym, wet bar with wine fridge, recreation area, bedroom, and another steam shower bath. Enjoy Inglewood’s best—Rouge, The Dean House, Spolumbo’s, Lina’s, farmers markets, RiverWalk, and more—all just steps away. With impeccable craftsmanship, designer finishes, and a new home warranty, this residence defines elevated urban living. Book your private tour today.

Property details

Basic Info

MLS® #
A2253441
Property Type:
Residential
Subtype:
Detached
Subdivision:
Inglewood
Price
$3,250,000
Sale/Lease:
For Sale
Size:
3,706 sq.ft.
Bedrooms:
4
Bathrooms:
5
Year Built:
2025 (0 years old)

Building Info

New Construction:
Yes
Structure Type:
House
Building Style:
3 (or more) Storey
Garage:
Yes
Parking:
Double Garage Detached
Fence:
Fenced
Basement:
Finished, Full
Features:
Bar, Built-in Features, Central Vacuum, Closet Organizers, Crown Molding, Double Vanity, Elevator, Granite Counters, High Ceilings, Kitchen Island, Natural Woodwork, No Animal Home, No Smoking Home, Open Floorplan, Pantry, Recessed Lighting, Smart Home, Soaking Tub, Steam Room, Sump Pump(s), Tankless Hot Water, Vinyl Windows, Walk-In Closet(s), Wet Bar, Wired for Data, Wired for Sound
Fireplaces:
2
Inclusions:
n/a
Appliances:
Bar Fridge, Built-In Refrigerator, Central Air Conditioner, Dishwasher, Range, Washer/Dryer
Laundry:
Upper Level
Exterior Features:
Balcony, BBQ gas line
Patio/Porch Features:
Deck, Front Porch

Neighborhood Info

Nearby Amenities:
Pool, Shopping Nearby, Street Lights, Walking/Bike Paths

Lot / Land Info

Lot Size:
0.09 acres
Lot Features:
Back Lane, Backs on to Park/Green Space, Creek/River/Stream/Pond, Front Yard, Landscaped, Rectangular Lot
Zoning:
R-CG

Materials & Systems

Roof:
Asphalt Shingle
Exterior:
Brick,Cement Fiber Board
Floors:
Ceramic Tile, Hardwood
Foundation:
Poured Concrete
Heating:
Boiler, ENERGY STAR Qualified Equipment, Natural Gas
Cooling:
Central Air, ENERGY STAR Qualified Equipment
Amenities:
Pool, Shopping Nearby, Street Lights, Walking/Bike Paths

Listing Info

Possession:
30 Days / Neg
Ask About This Property
  • This site is protected by reCAPTCHA and the Google Privacy Policy and Terms of Service apply.
Your Agent
  • DJ Golden

    780-897-4003

    Email

    Share This Listing
    Related Properties